Skip to main content

Desert Contemporary RV

Overview
area
Sq. ft.
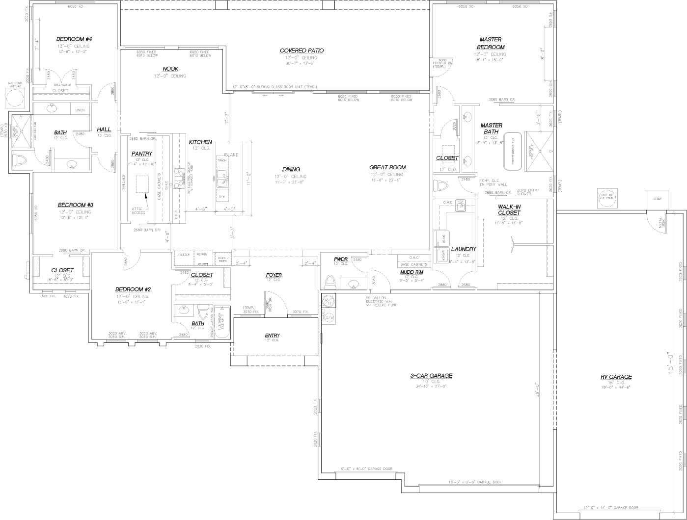
3,202
beds
BD
4
baths
BA
3
car_garage
Garage
3+RV

The Desert Contemporary is a single-story house ideal for those seeking both privacy and gorgeous mountain views. The layout is designed with large or growing families in mind, including an open-concept living area. The Great Room creates a central gathering place that smoothly transitions to the kitchen and breakfast nook. The Kitchen is equipped with stainless steel appliances, including wall-mount oven and microwave, with custom all-wood cabinets. The spacious Master Bedroom includes split vanities as well as a big walk-in closet. Roomy secondary bedrooms create plenty of space for other family members. The rear of the house features an extended length patio. Popular attractions in the area include Tonto National Forest, the Verde River, and Trilogy Golf Course.

Key points
Open floor plans
Spacious family room with panoramic views
3 BRM + Bonus room
Custom all-wood cabinets
Paved spacious patio
Stainless steel appliances
Wall-mount oven and microwave
Granite and quartz countertops
Glass door showers
3 car garage
Energy efficient homes
Energy efficient homes
From 2,500 sq ft
From 2,500 sq ft
LED lighting
LED lighting
Paved patios
Paved patios
Spacious and Sunny
Spacious and Sunny
Custom-built quality construction
Custom-built quality construction